0
  • Acheter De l'ancien
  • Louer
Dans un rayon de
Budget
Mini
Maxi

    Faites estimer votre bien par un professionnel

    Estimer votre bien
    3 Pièce(s)
    2 Chambre(s)

    Appartements de type T3 au 1er étage, 2e étage et 3e étage en VEFA.

    Saint-Paul (97460)
    Réf : 68
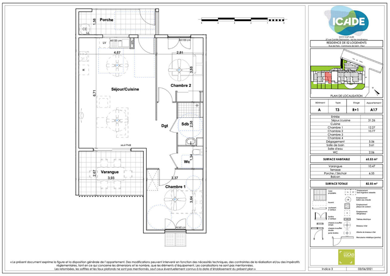
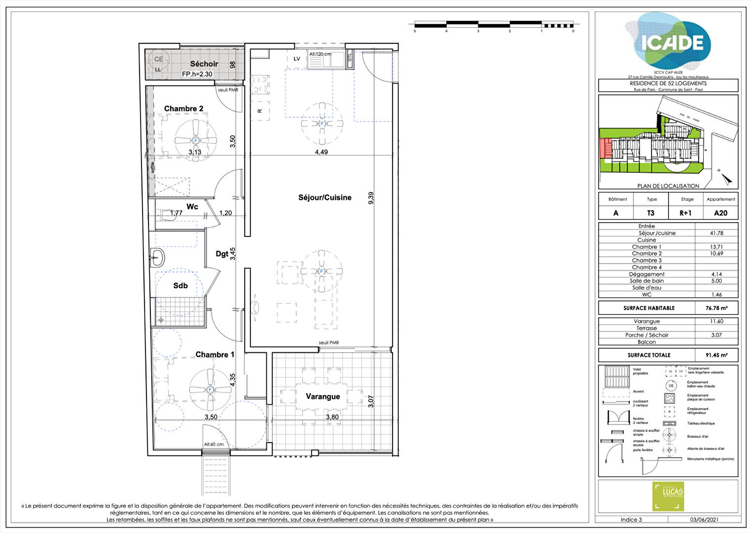
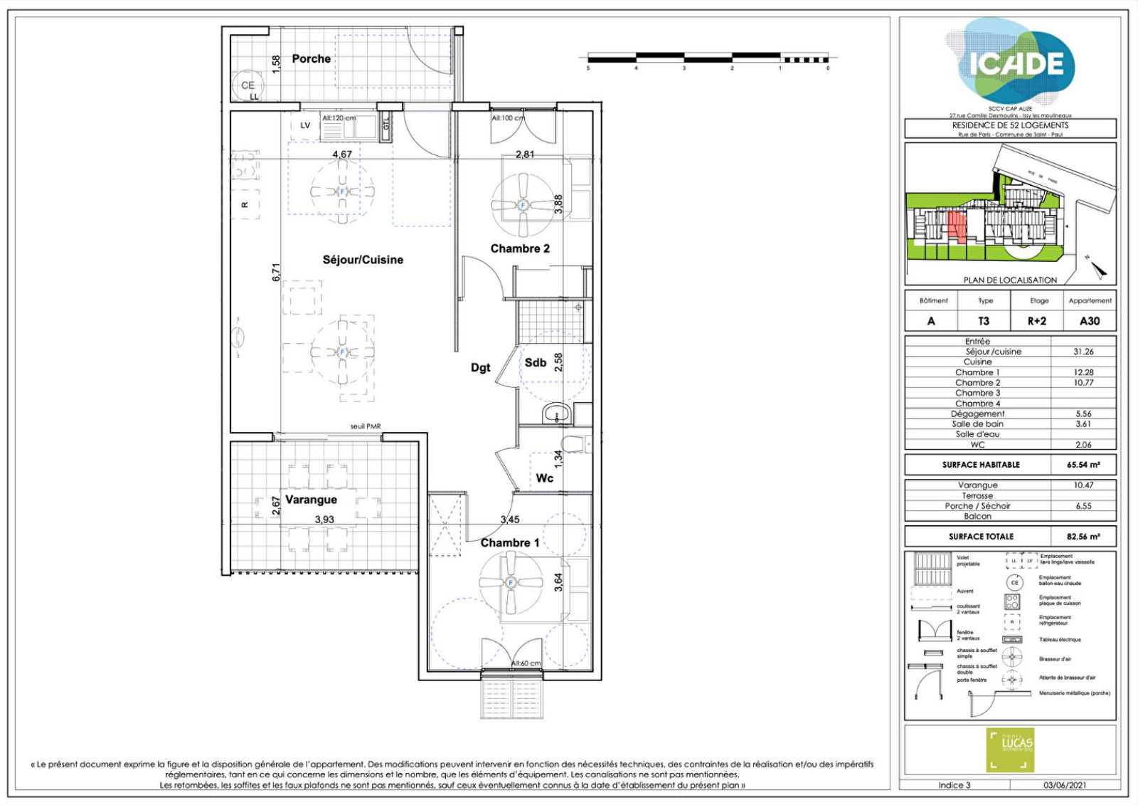
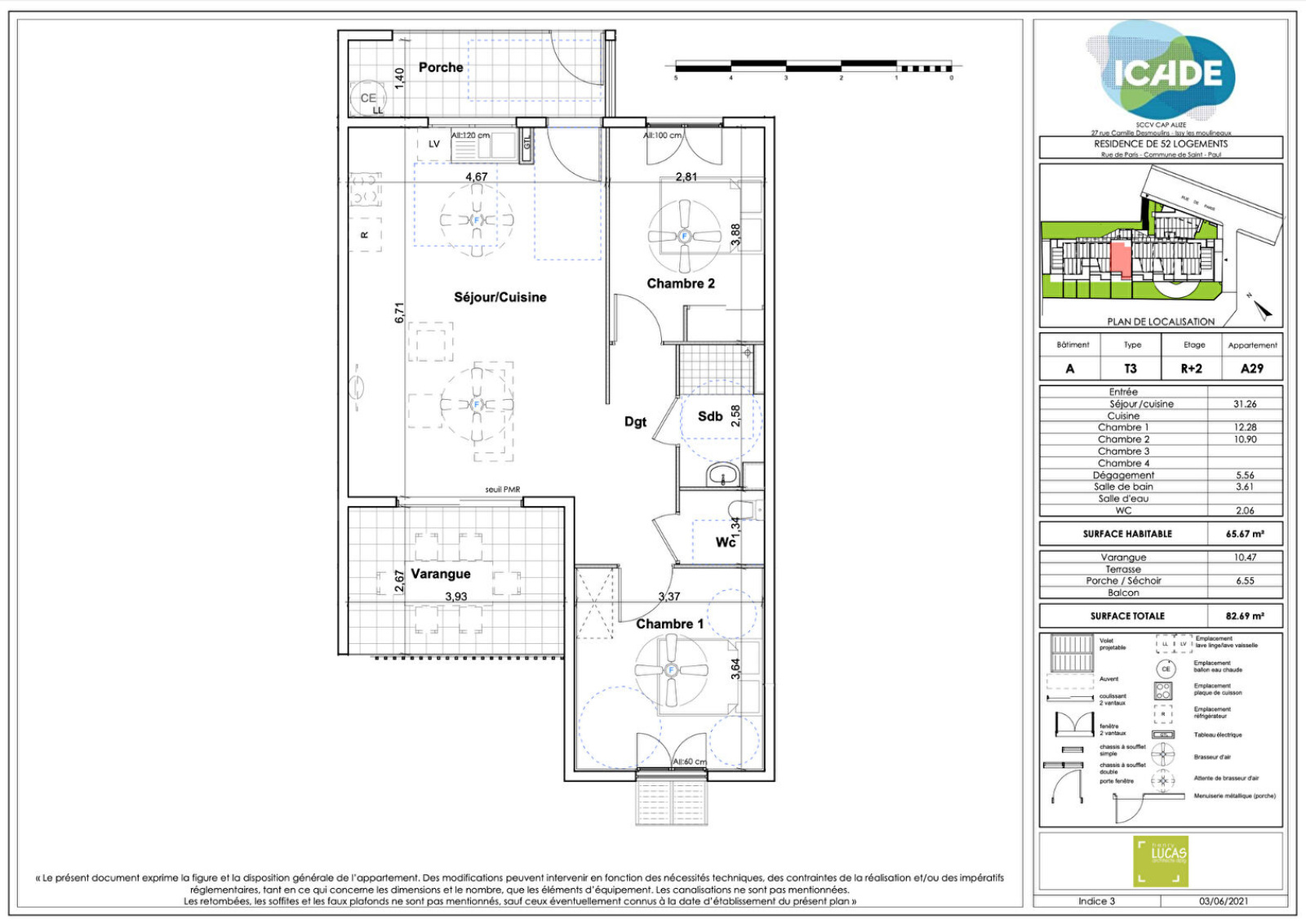
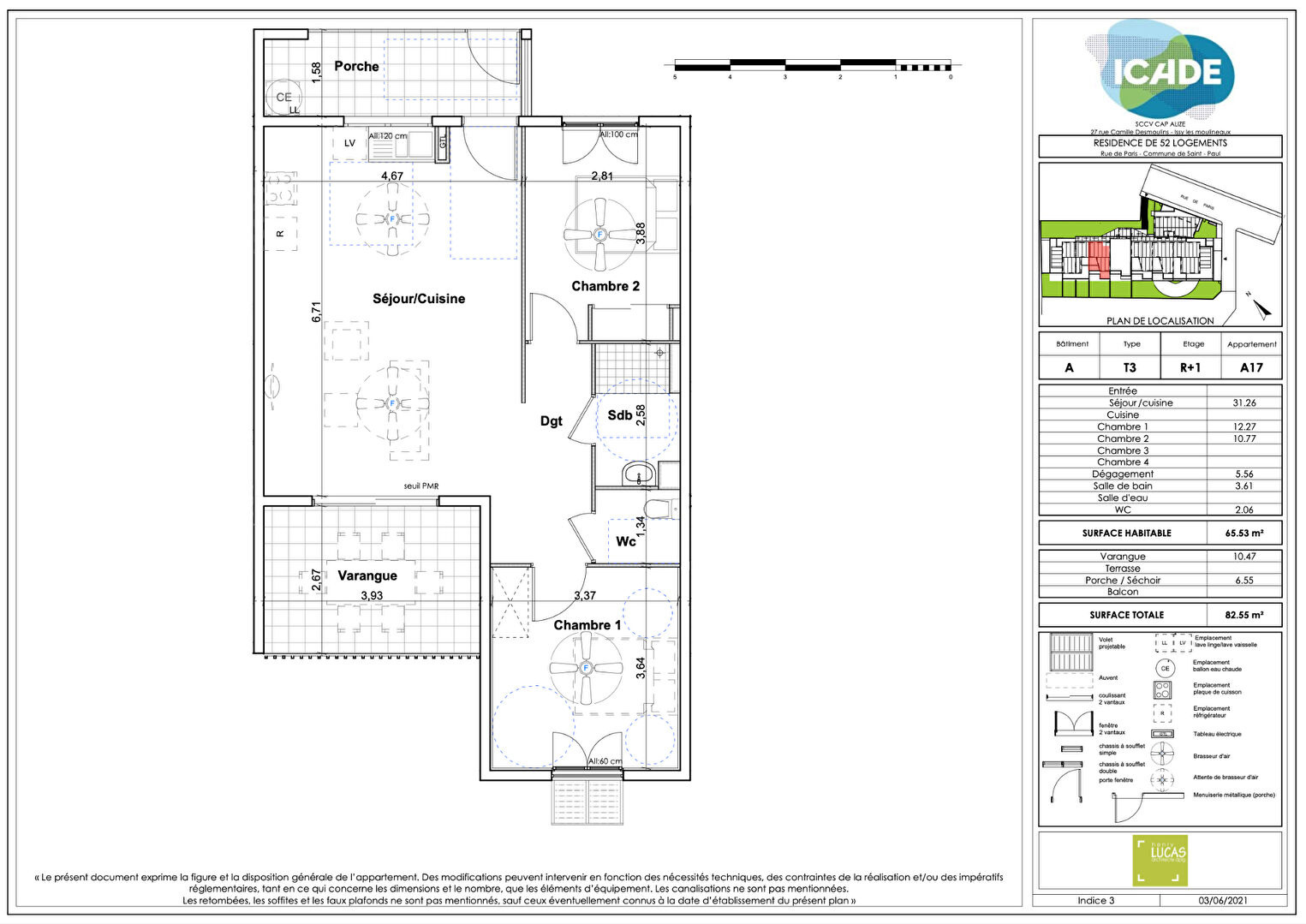
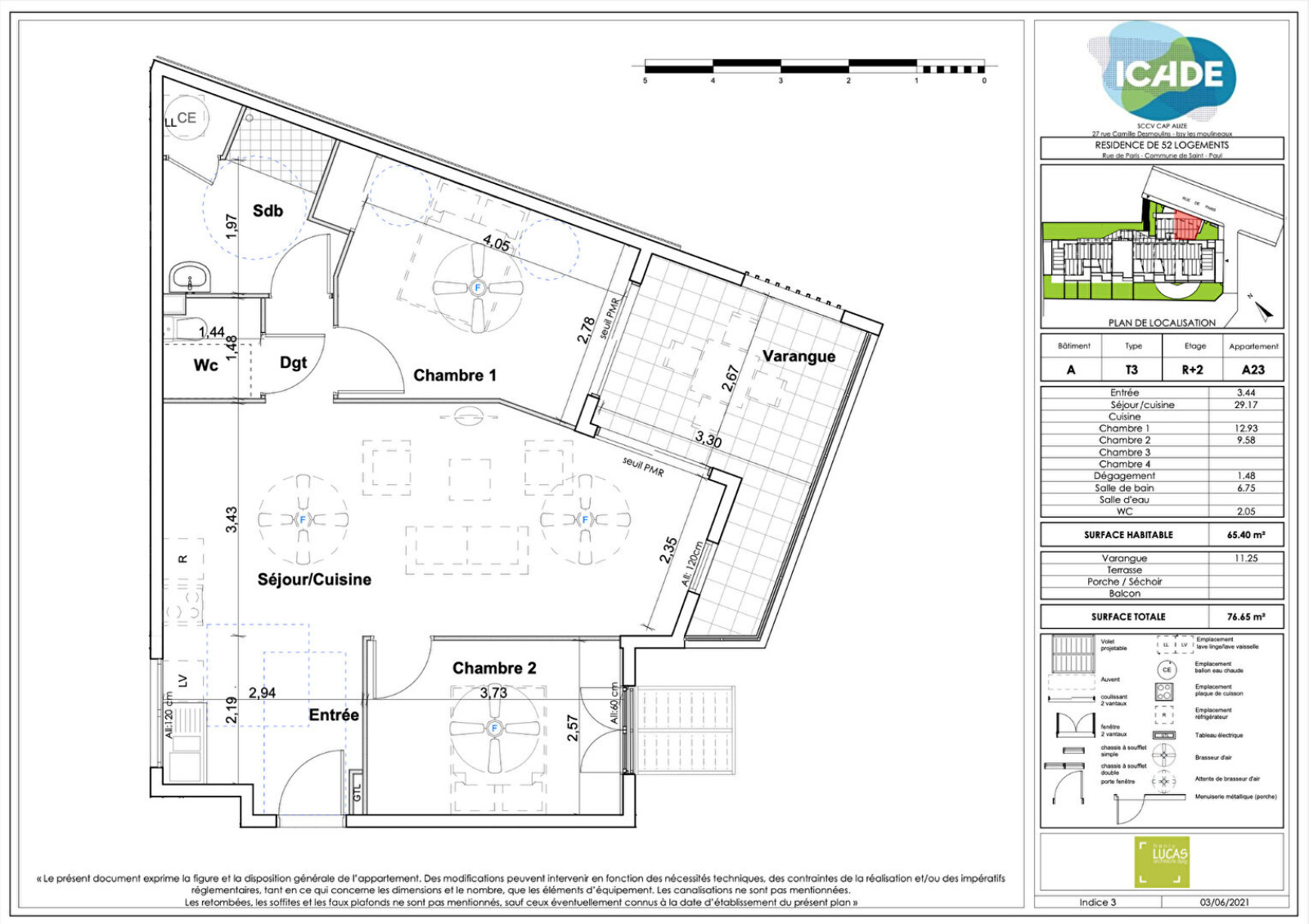
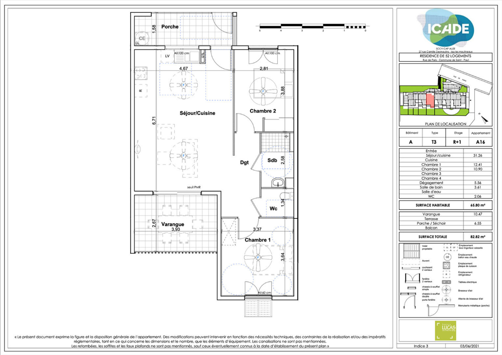
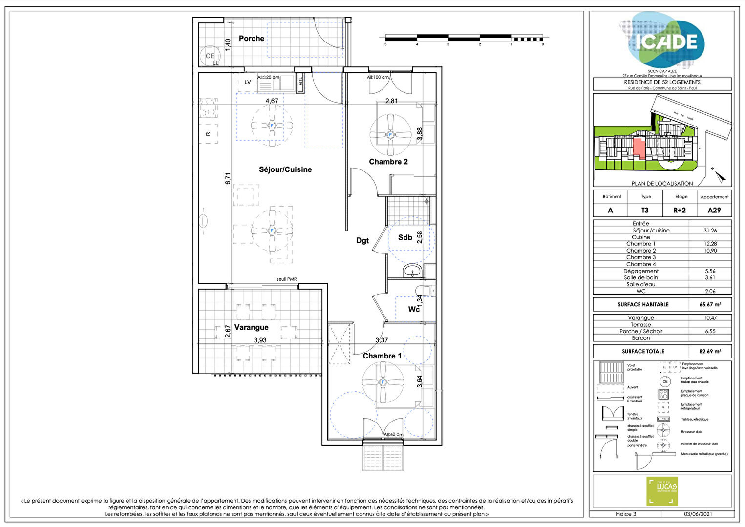
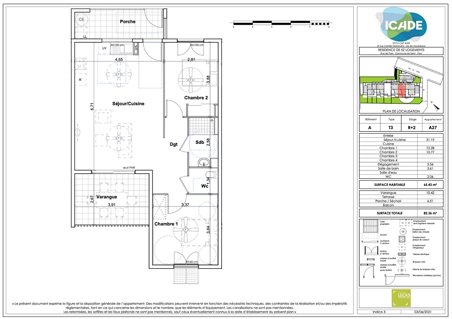
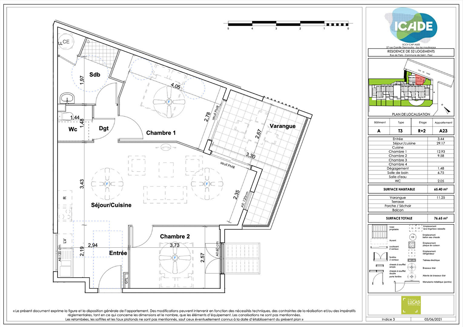
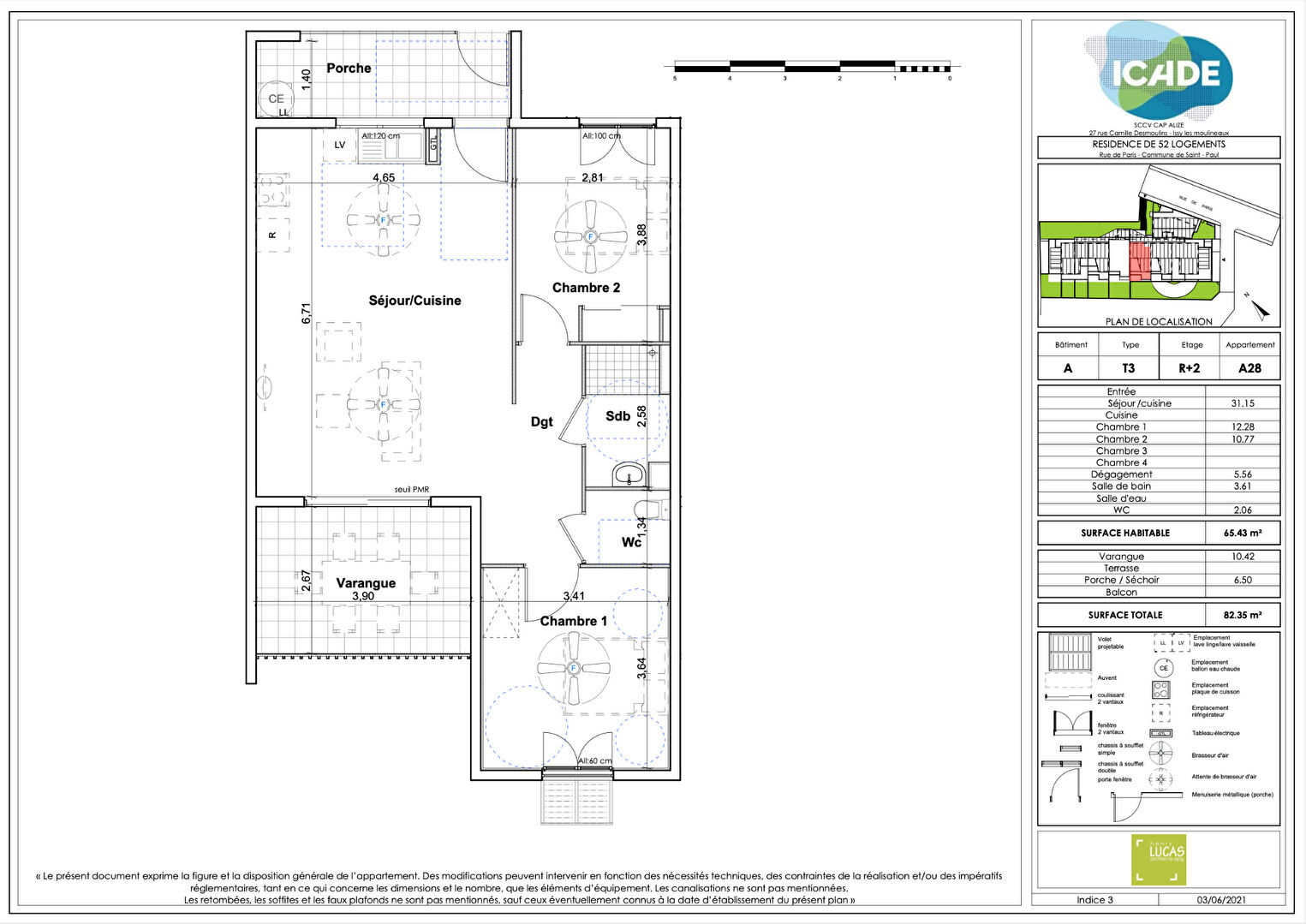
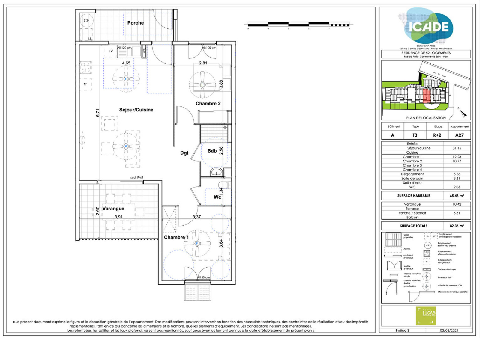
    Plusieurs appartements avec vue sur mer de type T3 sont disponibles à la vente dans la Résidence Cap Alizé à Saint-Paul, cette résidence possèdera 56 logements en copropriété. Sur quatres étages. Desservi d'un ascenseur passant par tout les étages. Elle possèdera un parking collectif en sous-sol, chaque appartement possèdera un numéro de place attribué, elle sera également fermée par un portail. La résidence sera également équipée de panneaux solaires. Vous serez proche de la gare routière, école, supermarché, centre-ville,200m du marché de Saint-Paul et piscine du front de mer. 10 apprtements de type T3 sont disponibles à partir de 313 000€ à 342 000€. Au premier étage 3 apprtements à partir de 318 000€ à 342 000€ : - Lot n°A17 : T3 situé à R+1 d'une surface habitable de 65.53m2, disposant d'une cuisne ouverte sur le séjour de 31.26m2, d'une salle de bain de 3.61m2, d'un WC de 2.06m2, d'une première chambre de 12.27m2 et d'une seconde chambre de 10.77m2. Pour l'extérieur vous pourrez y retrouver une varangue de 10.47m2 et un porshe de 6.55m2. Les 2 chambres seront équipées de brasseur d'air et 2 attentes pour le séjour. Au prix de 318 000€ TTC, les honoraires sont à charge du vendeur. - Lot n°A16 : T3 situé à R+1 d'une surface habitable de 65.80m2, dispoasant d'une cuisine ouverte sur le séjour de 31.26m2, d'une salle de bain de 3.61m2, d'un WC de 2.06m2, d'une première chambre de 12.41m2 et d'une seconde de 10.90m2. Pour l'extérieur vous pourrez y retrouver une varangue de 10.47m2 et un porshe de 6.55m2. Les 2 chambres seront équipées de brasseur d'air et 2 attentes pour le séjour. Au prix de 318 000€ TTC, les honoraires sont à charge du vendeur. - Lot n°A20 : T3 situé à R+1 d'une surface habitable de 76.18m2, disposant d'une cuise ouverte sur le séjour de 41.78m2, d'une salle de bain de 5.00m2, d'un WC de 1.46m2, d'une première chambre de 13.71m2 et d'une seconde de 10.69m2. Pour l'extérieur vous pourrez y retrouver une varangue de 11.60m2 et un porshe de 3.07m2. Les 2 chambres seront équipées de brasseur d'air et 2 attentes pour le séjour. Au prix de 342 000€ TTC, les honoraires sont à charge du vendeur. Au deuxième étage 5 apprtements à partir de 313 000€ à 322 000€ : - Lot n°A27 : T3 situé à R+2 d'une surface habitable de 65.43m2, disposant d'une ouverte sur le séjour de 31.15m2, d'une salle de bain de 3.61m2, d'un WC de 2.06m2, d'une première chambre de 12.28m2 et d'une seconde chambre de 10.77m2. Pour l'extérieur vous pourrez y retrouver une varangue de 10.42m2 et un porshe de 6.51m2. Les 2 chambres seront équipées de brasseur d'air et 2 attentes pour le séjour. Au prix de 321 000€ TTC, les honoraires sont à charge du vendeur. - Lot n°A28 : T3 situé à R+2 d'une surface habitable de 65.43m2, disposant d'une ouverte sur le séjour de 31.15m2, d'une salle de bain de 3.61m2, d'un WC de 2.06m2, d'une première chambre de 12.28m2 et d'une seconde chambre de 10.77m2. Pour l'extérieur vous pourrez y retrouver une varangue de 10.42m2 et un porshe de 6.50m2. Les 2 chambres seront équipées de brasseur d'air et 2 attentes pour le séjour. Au prix de 321 000€ TTC, les honoraires sont à charge du vendeur. - Lot n°A30 : T3 situé à R+2 d'une surface habitable de 65.54m2, disposant d'une cuisine ouverte sur le séjour de 31.26m2, d'une salle de bain de 3.61m2, d'un WC de 2.06m2, d'une première chambre de 12.28m2 et d'une seconde chambre de 10.77m2. Pour l'extérieur vous pourrez y retrouver une varangue de 10.47m2 et un porshe de 6.55m2. Les 2 chambres seront équipées de brasseur d'air et 2 attentes pour le séjour. Au prix de 322 000€ TTC, les honoraires sont à charge du vendeur. - Lot n°A29 : T3 situé à R+2 d'une surface habitable de 65.67m2, disposant d'une cuisine ouverte sur le séjour de 31.26m2, d'une salle de bain de 3.61m2, d'un WC de 2.06m2, d'une première chambre de 12.28m2 et d'une seconde chambre de 10.90m2. Pour l'extérieur vous pourrez y retrouver une varangue de 10.47m2 et un porshe de 6.55m2. Les 2 chambres seront équipées de brasseur d'air et 2 attentes pour le séjour. Au prix de 322 000€ TTC, les honoraires sont à charge du vendeur. - Lot n°A23 : T3 situé à R+2 d'une surface habitable de 65.40m2, disposant d'une cuisine ouverte sur le séjour de 29.17m2, d'une salle de bain de 6.75m2, d'un WC de 2.05m2, d'une première chambre de 12.93m2 et d'une seconde chambre de 9.58m2. Pour l'extérieur vous pourrez y retrouver une varangue de 11.25m2. Les 2 chambres seront équipées de brasseur d'air et 2 attentes pour le séjour. Au prix de 313 000€ TTC, les honoraires sont à charge du vendeur. Au troisième étage 2 appartements au prix de 326 000€ : - Lot n°A39 : T3 situé à R+3 d'une surface habitable de 65.43m2, disposant d'une cuisine ouverte sur le séjour de 31.15m2, d'une salle de bain de 3.61m2, d'un WC de 2.06m2, d'une première chambre de 12.28m2 et d'une seconde chambre de 10.77m2. Pour l'extérieur vous pourrez y retrouver une varangue de 10.42m2 et un porshe de 6.50m2. Les 2 chambr
    Ce bien vous intéresse ?
    Fieldset par défaut
    Fieldset par défaut
    Validation

    * Champs obligatoires

    Contacter l'agence
    Validation
    Les informations recueillies sur ce formulaire sont enregistrées dans un fichier informatisé par La Boite Immo agissant comme Sous-traitant du traitement pour la gestion de la clientèle/prospects de l'Agence / du Réseau qui reste Responsable du Traitement de vos Données personnelles. La base légale du traitement repose sur l'intérêt légitime de l'Agence / du Réseau. Elles sont conservées jusqu'à demande de suppression et sont destinées à l'Agence / au Réseau. Conformément à la loi « informatique et libertés », vous disposez des droits d’accès, de rectification, d’effacement, d’opposition, de limitation et de portabilité de vos données. Vous pouvez retirer votre consentement à tout moment en contactant directement l’Agence / Le Réseau. Consultez le site https://cnil.fr/fr pour plus d’informations sur vos droits. Si vous estimez, après avoir contacté l'Agence / le Réseau, que vos droits « Informatique et Libertés » ne sont pas respectés, vous pouvez adresser une réclamation à la CNIL. Nous vous informons de l’existence de la liste d'opposition au démarchage téléphonique « Bloctel », sur laquelle vous pouvez vous inscrire ici : https://www.bloctel.gouv.fr Dans le cadre de la protection des Données personnelles, nous vous invitons à ne pas inscrire de Données sensibles dans le champ de saisie libre.
    Ce site est protégé par reCAPTCHA, les Politiques de Confidentialité et les Conditions d'Utilisation de Google s'appliquent.

    En Bref

    Code postal 97460
    Surface habitable (m²) 65,40 m²
    Nombre de chambre(s) 2
    Nombre de pièces 3
    Ascenseur OUI
    Année de construction 2025

    Infos financières

    Prix de vente honoraires TTC inclus 313 000 €

    Energie

    Energie
    DPE
    GES