
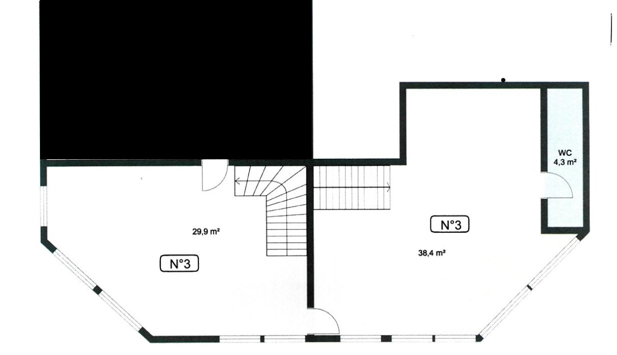
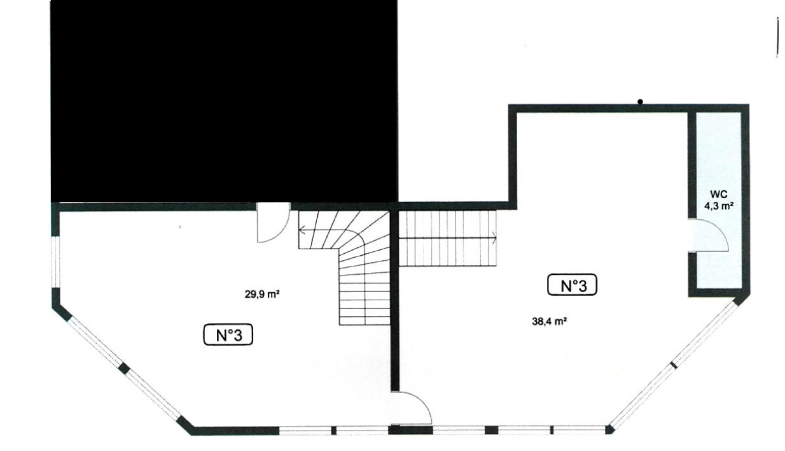
Saint-Pierre (97410)
Local commercial Saint Pierre 33 m2
1 500 €
CC*