0
  • Acheter De l'ancien
  • Louer
Dans un rayon de
Budget
Mini
Maxi

    Faites estimer votre bien par un professionnel

    Estimer votre bien
    2 Pièce(s)
    1 Chambre(s)

    Appartements T2 LE CONVIVIAL

    Belle pierre (97400)
    Réf : 85
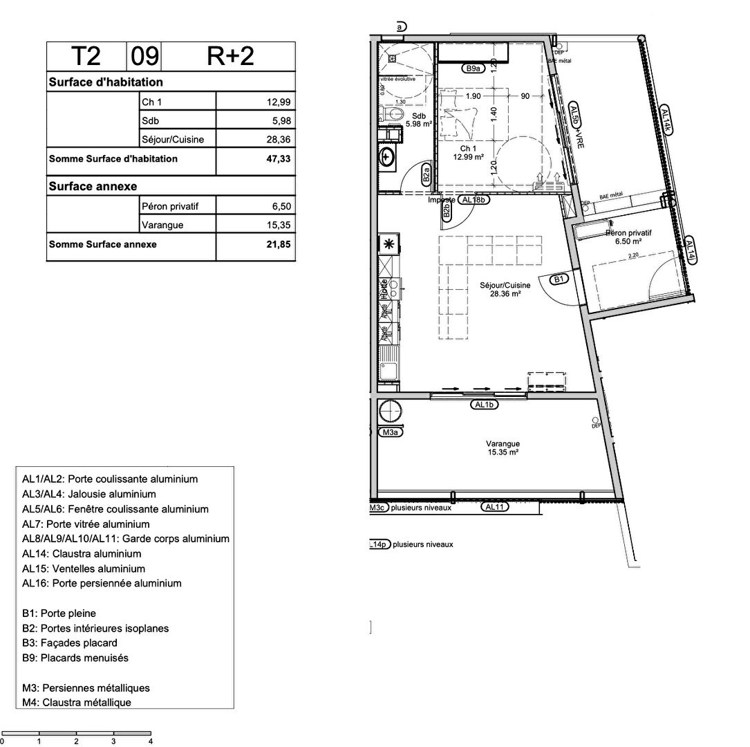
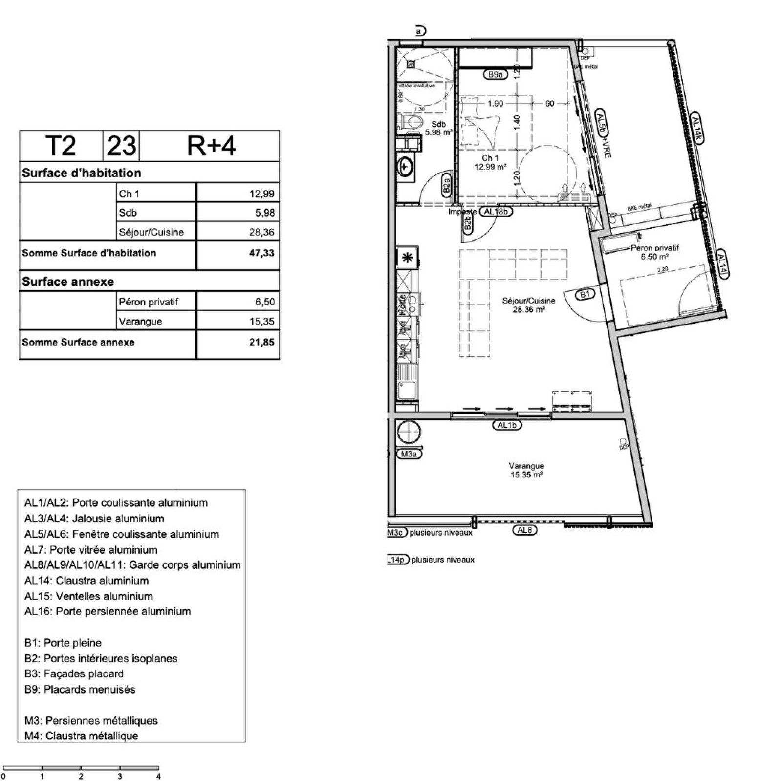
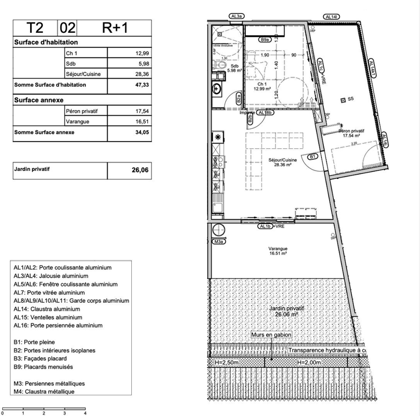
    Idéalement située dans la commune de SAINT-DENIS la résidence LE CONVIVIAL vous fait découvrir ses divers appartements. Résidence composée de 37 appartements sur 6 étages + parkings et de 12 caves. La résidence sera également équipée d'un ascenseur passant par tout les étages. 16 appartements de type T2 sont disponibles: Lot 2 T2 de 47,33m2 situé à R+1 composé d'une cuisine ouverte sur le séjour de 28,36m2, d'une salle de bain + WC de 5,98m2, d'une chambre de 12,99m2, d'une varangue de 16,51m2, d'un péron privatif de 17,54m2 et d'un jardin privative de 26,06m2. Au prix de 296 950 euros. Lot 16 de 47.33m2 situé à R+3 composé d'une cuisine ouverte sur le séjour de 28,36m2, d'une salle de bain de 5,98m2, d'une chambre de 12,99m2, d'un péron privatif de 6,50m2 et d'une varangue de 15,35m2. Au prix de 274 600 euros. Lot 30 situé R+5, lot 23 situé R+4 et lot 9 situé R+2 équivalent le lot 16, de 260 850 à 302 000 euros. Lot 19 de 58,67m2 situé à R+3 composé d'une cuisine de 7,94m2, d'un séjour de 28,23m2, d'une salle de bain de 3,80m2, d'un WC séparé de 1,64m2, d'une chambre de 11,83m2 et d'une varangue de 11,78m2. Au prix de 304 350 euros. Lot 18 à R+3 équivalant au lot 19, au prix de 304 280 euros. Lot 5 de 58,67m2 situé à R+1 composé d'une cuisine de 7,94m2, d'un séjour de 28,23m2, d'une salle de bain de 3,80m2, d'un WC séparé de 1,64m2, d'une chambre de 11,83m2, d'une terrasse privatif de 6,13m2 et d'une varangue de 11,78m2. Au prix de 267 850 euros. Lot 4 à R+1 équivalant au lot 5 267 800 euros. Lot 24 de 48,2m2 situé à R+4 composé d'une cuisine de 5,44m2, d'un séjour de 19,59m2, d'une salle de bain + WC de 7,77m2, d'une chambre de 10,93m2, d'un péron privatif de 5,58m2, d'une terrasse non couverte de 12,92m2 et d'une varangue de 8,6m2. Au prix de 305 700€. Lot 25 à R+4 équivalant au lot 24, au prix de 291 850€. Lot 26 situé à R+4 équivalant au lot 24 sans péron privatif, au prix de 291 850 euros. Lot 31 de 48,2m2 situé à R+5 composé de de 5,44m2, d'un séjour de 19,59m2, d'une salle de bain + WC de 7,77m2, d'une chambre de 10,93m2, d'un péron privatif de 5,58m2 et d'une varangue de 7,26m2. Au prix de 299 300 euros. Lot 32 de 48,2m2 situé à R+5 composé d'une cuisine de 5,44m2, d'un séjour de 19,67m2, d'une salle de bain + WC de 7,77m2, d'une chambre de 10,83m2 et d'une varangue de 7,21m2. Au prix de 268 900 euros. Lot 33 situé à R+5 équivalant au lot 32, au prix de 268 900 euros. Lot 34 de 56,16m2 situé à R+5 composé d'une cuisine de 8,39m2, d'un séjour de 18,51m2, d'une salle de bain + WC de 4,80m2, d'une chambre de 17,05m2, d'un péron privatif de 3,42m2 et d'une varangue de 13,91m2. Au prix de 341 600 euros. Pour plus d'informations contactez Banks Sandrine au 0692 27 29 69.
    Ce bien vous intéresse ?
    Fieldset par défaut
    Fieldset par défaut
    Validation

    * Champs obligatoires

    Contacter l'agence
    Validation
    Les informations recueillies sur ce formulaire sont enregistrées dans un fichier informatisé par La Boite Immo agissant comme Sous-traitant du traitement pour la gestion de la clientèle/prospects de l'Agence / du Réseau qui reste Responsable du Traitement de vos Données personnelles. La base légale du traitement repose sur l'intérêt légitime de l'Agence / du Réseau. Elles sont conservées jusqu'à demande de suppression et sont destinées à l'Agence / au Réseau. Conformément à la loi « informatique et libertés », vous disposez des droits d’accès, de rectification, d’effacement, d’opposition, de limitation et de portabilité de vos données. Vous pouvez retirer votre consentement à tout moment en contactant directement l’Agence / Le Réseau. Consultez le site https://cnil.fr/fr pour plus d’informations sur vos droits. Si vous estimez, après avoir contacté l'Agence / le Réseau, que vos droits « Informatique et Libertés » ne sont pas respectés, vous pouvez adresser une réclamation à la CNIL. Nous vous informons de l’existence de la liste d'opposition au démarchage téléphonique « Bloctel », sur laquelle vous pouvez vous inscrire ici : https://www.bloctel.gouv.fr Dans le cadre de la protection des Données personnelles, nous vous invitons à ne pas inscrire de Données sensibles dans le champ de saisie libre.
    Ce site est protégé par reCAPTCHA, les Politiques de Confidentialité et les Conditions d'Utilisation de Google s'appliquent.

    En Bref

    Code postal 97400
    Surface habitable (m²) 47,33 m²
    Nombre de chambre(s) 1
    Nombre de pièces 2
    Ascenseur OUI

    Infos financières

    Prix de vente honoraires TTC inclus 274 600 €

    Energie

    Energie
    DPE
    GES