0
  • Acheter De l'ancien
  • Louer
Dans un rayon de
Budget
Mini
Maxi

    Faites estimer votre bien par un professionnel

    Estimer votre bien
    3 Pièce(s)
    2 Chambre(s)

    Appartements T3 LE CONVIVIAL

    Belle pierre (97400)
    Réf : 86
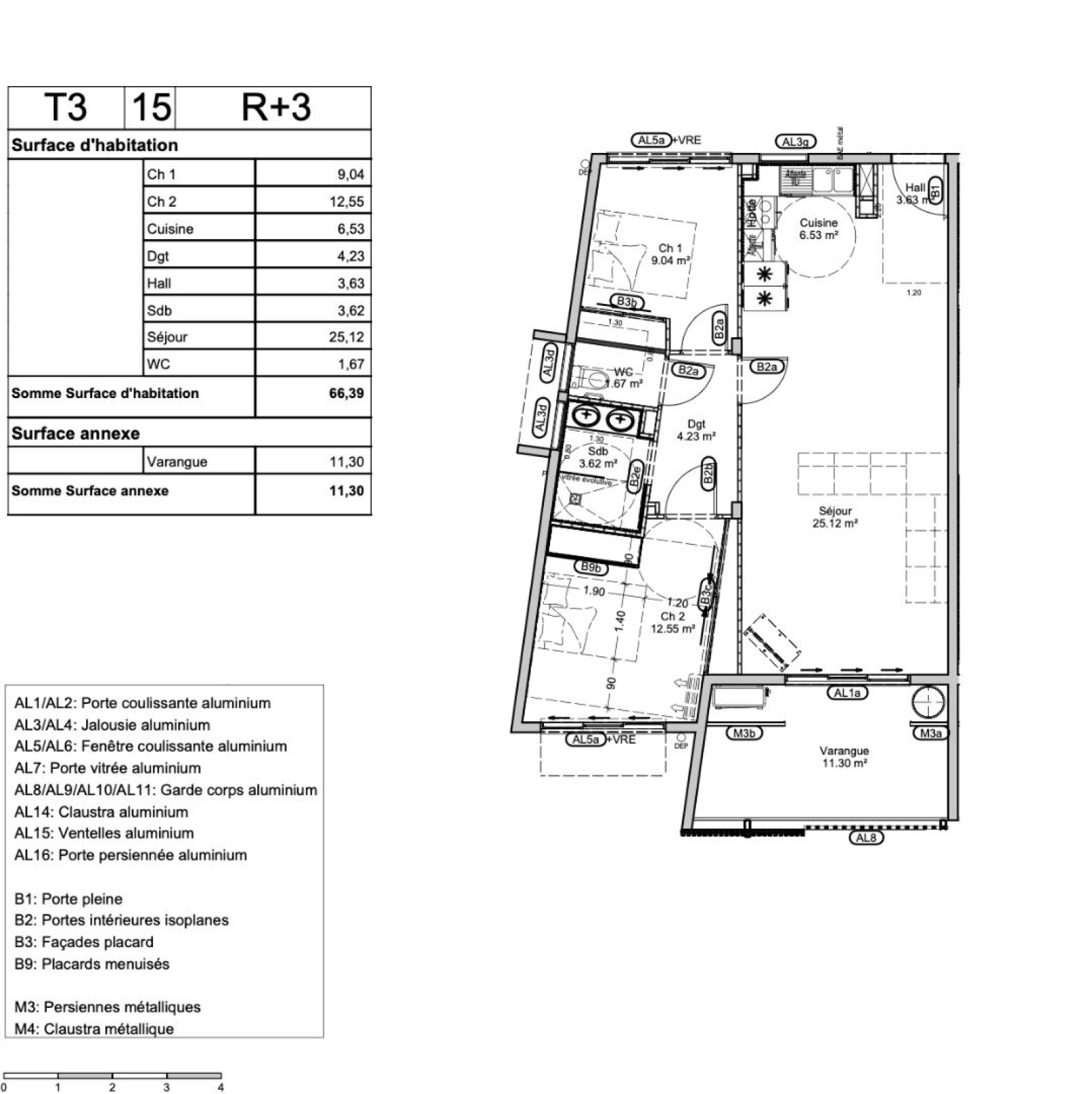
    Idéalement située dans la commune de SAINT-DENIS la résidence LE CONVIVIAL vous fait découvrir ses divers appartements. Résidence composée de 37 appartements sur 6 étages + parkings et de 12 caves. La résidence sera également équipée d'un ascenseur passant par tout les étages. 11appartements de type T3 sont disponibles: Lot 3 de 58,24m2 situé à R+1 composé d'une cuisine ouverte séjour 24,16m2, d'une salle de bain de 3,53m2, WC séparé de 1,64m2, une première chambre de 9,35m2, une seconde chambre de 10,93m2, une terrasse privative de 5,78m2 et une terrasse couverte de 34,20m2. Au prix de 312 500 euros. Lot 10 de 58,24m2 situé à R+2 composé d'une cuisine ouverte séjour 24,16m2, d'une salle de bain de 3,53m2, WC séparé de 1,64m2, une première chambre de 9,35m2, une seconde chambre de 10,93m2, une terrasse non couverte 13,84m2, terrasse couverte 20,37m2 et un péron privatif de 16,03m2. Au prix de 372 750 euros. Lot 8 de 66,39m2 situé à R+2 composé d'une cuisine ouverte sur le séjour de 31,65m2, d'une salle de bain de 3,62m2, WC séparé de 1,67m2, une première chambre de 9,04m2, une seconde chambre de 12,55m2, une varangue de 11,30m2 et un jardin privatif de 55,68m2. Au prix de 428 928 euros. Lot 15 situé R+3, lot 29 situé à R+5, lot 22 situé à R+4, équivalent le lot 8 sans jardin privatif, de 339 550€ à 373 500€. Lot 6 de 66,86m2 situé à R+1 composé d'une cuisine ouverte sur le séjour de 27,66m2, d'une salle de bain de 4,53m2, WC séparé de 2,08m2, une première chambre de 10,89m2, une seconde chambre de 12,64m2, péron privatif 19,71, varangue de 10,69m2 et un jardin privatif de 31,83m2. Au prix de 306 550 euros. Lot 13 de 66,86m2 situé à R+2 composé d'une cuisine ouverte sur le séjour de 27,66m2, d'une salle de bain de 4,53m2, WC séparé de 2,08m2, une première chambre de 10,89m2, une seconde chambre de 12,64m2, péron privatif de 3,42m2 et varangue de 10,69m2. Au prix de 330 950 euros. Lot 20 situé à R+3 équivalant au lot 6, au prix de 348 350 euros. Lot 14 de 69,93m2 situé à R+3 composé d'une cuisine ouverte sur le salon de 37,94m2, d'une salle de bain de 4,18m2, WC séparé de 1,35m2, d'une première chambre de 9,03m2, une seconde de 11,15m2 et d'une terrasse couverte de 14,75m2. Au prix de 364 350 euros. Lot 21 situé R+4 équivalant au lot 14, au prix de 382 550 euros. Pour plus d'informations contactez Banks Sandrine au 0692 27 29 69.
    Ce bien vous intéresse ?
    Fieldset par défaut
    Fieldset par défaut
    Validation

    * Champs obligatoires

    Contacter l'agence
    Validation
    Les informations recueillies sur ce formulaire sont enregistrées dans un fichier informatisé par La Boite Immo agissant comme Sous-traitant du traitement pour la gestion de la clientèle/prospects de l'Agence / du Réseau qui reste Responsable du Traitement de vos Données personnelles. La base légale du traitement repose sur l'intérêt légitime de l'Agence / du Réseau. Elles sont conservées jusqu'à demande de suppression et sont destinées à l'Agence / au Réseau. Conformément à la loi « informatique et libertés », vous disposez des droits d’accès, de rectification, d’effacement, d’opposition, de limitation et de portabilité de vos données. Vous pouvez retirer votre consentement à tout moment en contactant directement l’Agence / Le Réseau. Consultez le site https://cnil.fr/fr pour plus d’informations sur vos droits. Si vous estimez, après avoir contacté l'Agence / le Réseau, que vos droits « Informatique et Libertés » ne sont pas respectés, vous pouvez adresser une réclamation à la CNIL. Nous vous informons de l’existence de la liste d'opposition au démarchage téléphonique « Bloctel », sur laquelle vous pouvez vous inscrire ici : https://www.bloctel.gouv.fr Dans le cadre de la protection des Données personnelles, nous vous invitons à ne pas inscrire de Données sensibles dans le champ de saisie libre.
    Ce site est protégé par reCAPTCHA, les Politiques de Confidentialité et les Conditions d'Utilisation de Google s'appliquent.

    En Bref

    Code postal 97400
    Surface habitable (m²) 58,24 m²
    Nombre de chambre(s) 2
    Nombre de pièces 3
    Ascenseur OUI

    Infos financières

    Prix de vente honoraires TTC inclus 306 550 €

    Energie

    Energie
    DPE
    GES